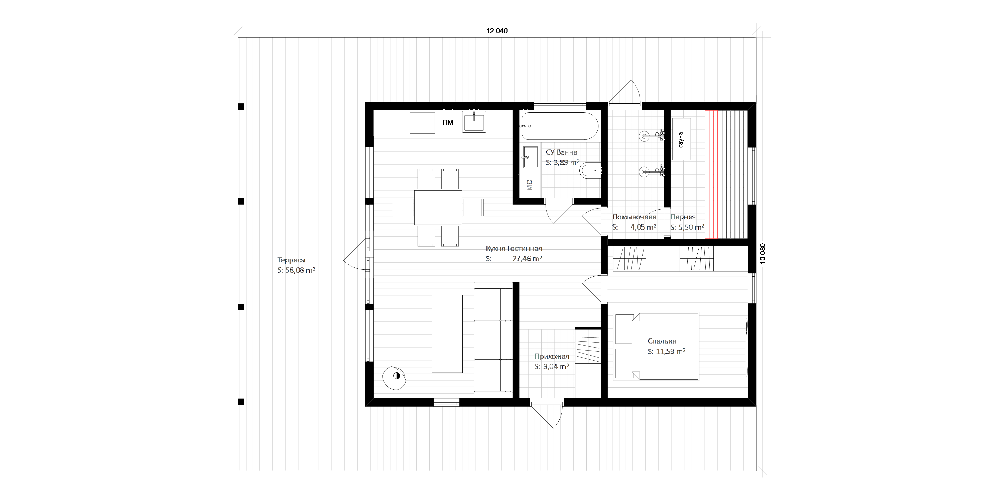
Шале 10х12
Шале 10х12
Цена бани с доставкой и установкой: 4 490 000 руб.
Срок доставки: 1-2 недели
Гарантия: 5 лет
Рассрочка: 0% до 500 тыс. руб.
| Фундамент | Свайно-винтовой, сваи 2500х108мм. Цоколь обшивается доской строганной 20х100 мм. либо ЦСП 10мм. |
| Обвязочный ряд | Брус сечением 150х150 мм. камерной сушки, обработан био-огнезащитными спецсредствами на производстве. Установка: монтаж на фундамент. Гидроизоляция- РПП 300(два слоя). |
| Лаги | Доска камерной сушки, 40х150 мм. обработана био-огнезащитными спецсредствами на производстве, шаг укладки 300 мм. |
| Пол черновой | ОСБ 9 мм. крепление: саморезы оцинкованные. Паро-гидроизоляция izospan. Монтаж: сплошной настил. |
| Пол чистовой | Шпунтованная доска камерной сушки, толщина – 36 мм. Крепление: саморезы в шпунт. Тепловой зазор: не более 2 см по периметру, прикрываемый деревянным плинтусом. Утепление:150 мм. Паро-, гидроизоляция izospan. Либо подготовка под монтаж чистового пола ЦСП 10 мм. 2 слоя. |
| Стены | Каркас из доски 40х150 мм камерной сушки, доска обработана био-огнезащитными спецсредствами на производстве, шаг стоек 590 мм. Монтаж: гвозди, уголки, пластины, саморезы оцинкованные. Утепление 150 мм. Паро-изоляция и ветрозащита Izospan. Вент зазор 40 мм снаружи, 20 мм. изнутри. Обшивка снаружи имитация бруса либо ЦСП 10 мм. Обшивка изнутри имитация бруса либо ГКЛ под отделку. |
| Перегородки | Перегородки из доски 40х100 мм камерной сушки, доска обработана био-огнезащитными спецсредствами на производстве, шаг стоек 590 мм. Монтаж: гвозди, уголки, пластины, саморезы оцинкованные. Утепление 100 мм. Паро-изоляция Izospan с двух сторон. Обшивка имитация бруса либо ГКЛ под отделку. |
| Потолок | Обшивка: имитацией бруса хвойных пород, сушка – камерная. Утепление: – 150 мм. Паро-изоляция и ветрозащита Izospan. |
| Кровля | Мягкая, либо металлочерепица, цвет на выбор. Стропильная система: доска размером 40х150 мм. Вент зазор 40 мм., доска обработана био-огнезащитными спецсредствами на производстве, шаг укладки 590 мм. Обрешетка: доска размером 20х100 мм., доска обработана био-огнезащитными спецсредствами на производстве. Паро-изоляция и ветрозащита Izospan. Свесы кровли подшиваются доской строганной, камерной сушки 17х90мм. |
| Терраса | Столбы деревянные, сечение 140х140 мм. Ограждение: строганная доска 38х140 мм Пол: доска 38х140 мм. материал строганный, камерной сушки. |
| Окна | Металлопластиковые двухкамерные стеклопакеты, профиль Милке 70, ламинация цвет на выбор, размер по проекту. Оснащение: заводская фурнитура, наличники. |
| Двери | Металлическая (Россия) – для входной; Филёнчатые – для межкомнатных; стеклянная дверь – для парной. Оснащение: заводская фурнитура, наличники. |
| Парная | Обшивка стен, вагонка класс А осина, ольха, липа. Теплоизоляция: фольга. Пологи: материал – осина, ольха, липа. Оснащение: приточно-вытяжная вентиляция, «второе дыхание». Оборудование: экранированная кирпичом заводская дровяная печь «Варвара», тип трубы: сэндвич; либо электрическая «Харвия». Обшивка стены за печью камень по негорючему листу минерит. |
Посмотрите галерею выполненных
проектов и убедитесь в нашем опыте
проектов и убедитесь в нашем опыте
Посмотрите галерею выполненных проектов и убедитесь в нашем опыте
Лучший способ убедиться в качестве строительства — посетить строящиеся или построенный объекты.
Лучший способ убедиться в качестве строительства — посетить строящиеся или построенный объекты.
Внутренняя отделка
Внутренняя отделка
Фото объектов снаружи
Фото объектов снаружи