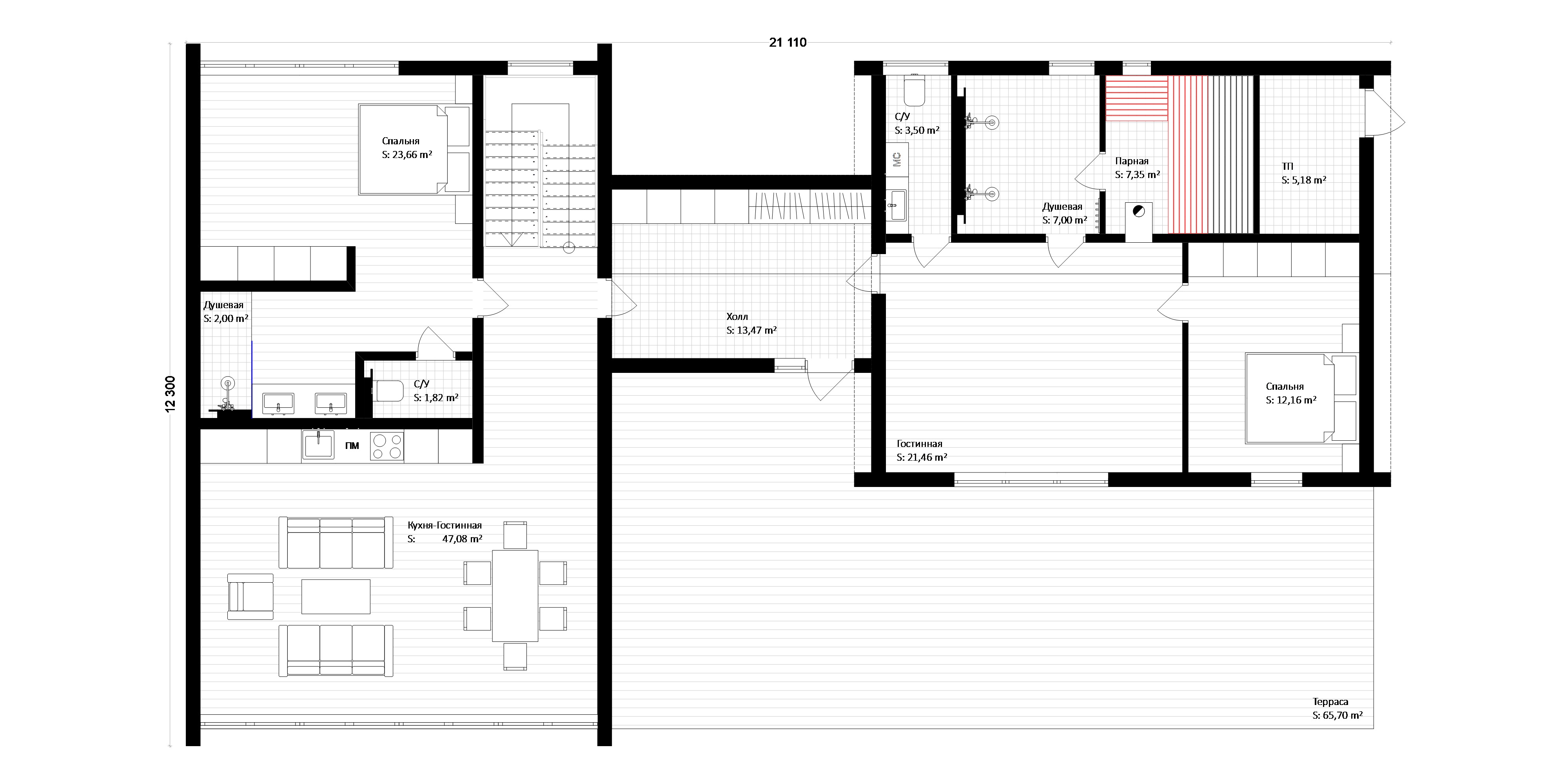
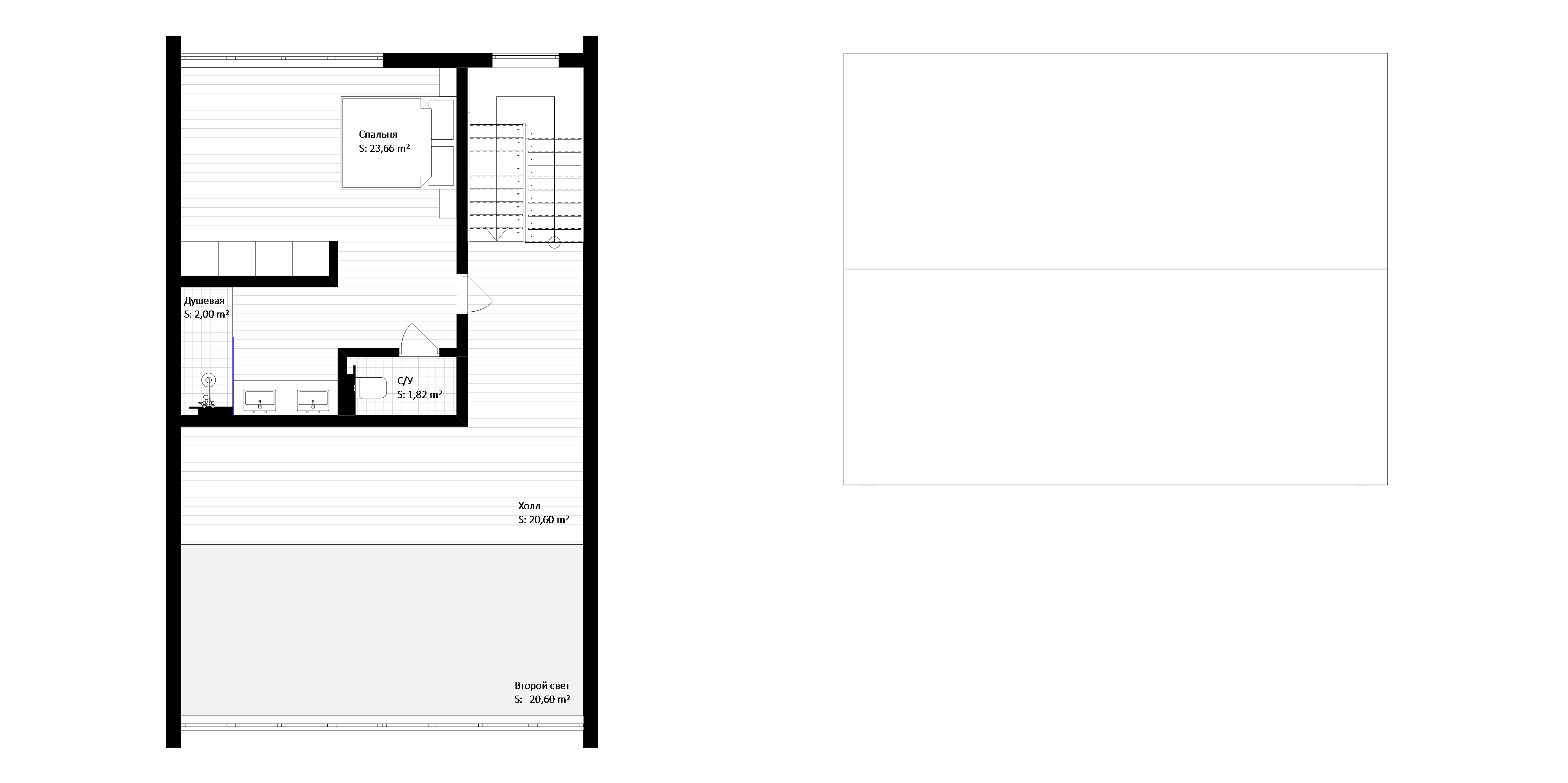
Егор 21х12
Егор 21х12
Цена бани с доставкой и установкой: 13 190 000 руб.
Срок доставки: 1-2 недели
Гарантия: 5 лет
Рассрочка: 0% до 500 тыс. руб.
| Фундамент | Свайно-винтовой, сваи 2500х108мм. Цоколь обшивается доской строганной 20х100 мм. либо ЦСП 10мм. |
| Обвязочный ряд | Брус сечением 150х150 мм. камерной сушки, обработан био-огнезащитными спецсредствами на производстве. Установка: монтаж на фундамент. Гидроизоляция- РПП 300(два слоя). |
| Лаги | Доска камерной сушки, 40х150 мм. обработана био-огнезащитными спецсредствами на производстве, шаг укладки 300 мм. |
| Пол черновой | ОСБ 9 мм. крепление: саморезы оцинкованные. Паро-гидроизоляция izospan. Монтаж: сплошной настил. |
| Пол чистовой | Шпунтованная доска камерной сушки, толщина – 36 мм. Крепление: саморезы в шпунт. Тепловой зазор: не более 2 см по периметру, прикрываемый деревянным плинтусом. Утепление:150 мм. Паро-, гидроизоляция izospan. Либо подготовка под монтаж чистового пола ЦСП 10 мм. 2 слоя. |
| Стены | Каркас из доски 40х150 мм камерной сушки, доска обработана био-огнезащитными спецсредствами на производстве, шаг стоек 590 мм. Монтаж: гвозди, уголки, пластины, саморезы оцинкованные. Утепление 150 мм. Паро-изоляция и ветрозащита Izospan. Вент зазор 40 мм снаружи, 20 мм. изнутри. Обшивка снаружи имитация бруса либо ЦСП 10 мм. Обшивка изнутри имитация бруса либо ГКЛ под отделку. |
| Перегородки | Перегородки из доски 40х100 мм камерной сушки, доска обработана био-огнезащитными спецсредствами на производстве, шаг стоек 590 мм. Монтаж: гвозди, уголки, пластины, саморезы оцинкованные. Утепление 100 мм. Паро-изоляция Izospan с двух сторон. Обшивка имитация бруса либо ГКЛ под отделку. |
| Потолок | Обшивка: имитацией бруса хвойных пород, сушка – камерная. Утепление: – 150 мм. Паро-изоляция и ветрозащита Izospan. |
| Кровля | Мягкая, либо Кликфальц, цвет на выбор. Стропильная система: доска размером 40х150 мм. Вент зазор 40 мм., доска обработана био-огнезащитными спецсредствами на производстве, шаг укладки 590 мм. Обрешетка: доска размером 20х100 мм., доска обработана био-огнезащитными спецсредствами на производстве. Паро-изоляция и ветрозащита Izospan. Свесы кровли подшиваются доской строганной, камерной сушки 17х90мм. |
| Терраса | Столбы деревянные, сечение 140х140 мм. Ограждение: строганная доска 38х140 мм Пол: доска 38х140 мм. материал строганный, камерной сушки. |
| Окна | Металлопластиковые двухкамерные стеклопакеты, профиль Милке 70, ламинация цвет на выбор, размер по проекту. Оснащение: заводская фурнитура, наличники. |
| Двери | Металлическая (Россия) – для входной; Филёнчатые – для межкомнатных; стеклянная дверь – для парной. Оснащение: заводская фурнитура, наличники. |
| Парная | Обшивка стен, вагонка класс А осина, ольха, липа. Теплоизоляция: фольга. Пологи: материал – осина, ольха, липа. Оснащение: приточно-вытяжная вентиляция, «второе дыхание». Оборудование: экранированная кирпичом заводская дровяная печь «Варвара», тип трубы: сэндвич; либо электрическая «Харвия». Обшивка стены за печью камень по негорючему листу минерит. |
Посмотрите галерею выполненных
проектов и убедитесь в нашем опыте
проектов и убедитесь в нашем опыте
Посмотрите галерею выполненных проектов и убедитесь в нашем опыте
Лучший способ убедиться в качестве строительства — посетить строящиеся или построенный объекты.
Лучший способ убедиться в качестве строительства — посетить строящиеся или построенный объекты.
Внутренняя отделка
Внутренняя отделка
Фото объектов снаружи
Фото объектов снаружи
Приезжайте на встречу!
Мы любим живое общение!
Мы любим живое общение!
Приезжайте на встречу!
Мы любим живое общение!
Мы любим живое общение!
Всегда готовы встретиться с Вами лично для обсуждения проекта, для показа наших реализованных объектов. Записатся можно по телефону, электронной почте или через Макс.
Телефон: +7 911 633 00 00
Email: kh.bani@yandex.ru